Домой Карта сайта Контакты
АКЦИЯ – электронные циркуляционные насосы со скидкой 50-60% по цене обычных
Насосное оборудование
Подписка 
 


                                                                                                      

 
 

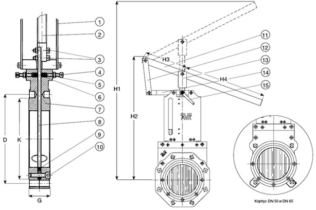
 Задвижки AVK гильотинная шиберная Серия: 702/30 (Сточные воды) 

 

Назначение:
Для воды и сточных вод с
температурой до макс. +70°С

Компоненты:
1. Стойка 6. Коробка уплотнения 11. Рычаг
2. Шток 7. Корпус 12. Guide
3. Болт и гайка 8. Шибер 13. Коромысло
4. Болт коробки уплотнения 9. Прокладка на корпус 14. Кронштейн рычага
5. Толкатель 10. Болт на корпус 15. Блокирующая рукоятка

   Задвижка AVK гильотинная шиберная Серия: 702/30

[Image] Документация: [Image] 10-яя Гарантия на оборудование


 




Logo Lowara
Logo Vogel Pumpen
Logo Flygt
Logo Zilmet
Logo Avk

Вход в систему  
 
новый пользователь? 
Зарегистрироваться
 
Система Orphus